1 / 0








產品功能規格
兩個獨立控制溫度區
恆溫,溫度設定在攝氏5 -20 度之 間
濕度控制
不銹鋼內裝
鋁製或櫸木製可完全拉出酒瓶托 盤
展示燈選項
低震動運作
容量99 瓶
電子控溫,附數位顯示
3D 動態冷卻系統
自動除霜
防紫外線
可重新設定
開門與故障警示
淨容量 13.7 cu. ft. (389 liters)
容量99 瓶(以標準瓶0.75 公升 計)
十層可完全拉開酒架,其中四層可儲 存大型酒瓶
最多可放13 層酒架
內部照明2 個頂燈,1 個下方溫度區 展示燈
耗電 420.85 000132/year.
耗電 1.153 000132/24 h.
噪音值43dB (re 1 pW)
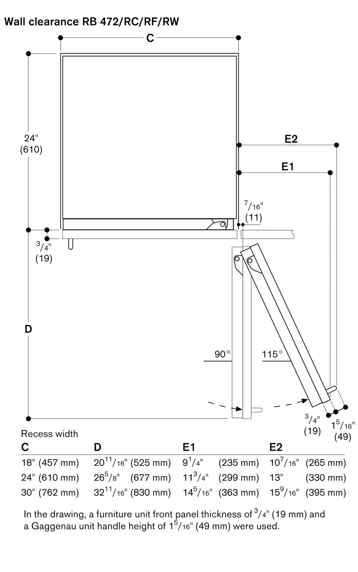
平絞鍊
鉸鍊設於右邊,可倒裝
開門角度115 度,可固定在90 度
門重量最大約72 kg.
不得於海拔1500 公尺以上運輸/ 運作
額定功率: 102W
額定電壓/ 頻率:120 / 60Hz
電流 (安培): 10 A
電源線118,1" (3.0 000152)